伴庭艺墅

室内设计 · 居住空间

钟杨柳

钟杨柳设计工作室设计总监

2025/07/01 2640

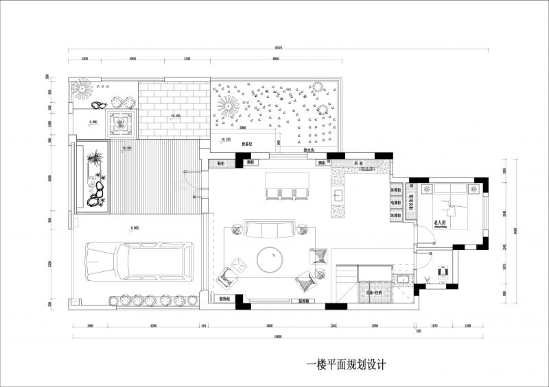
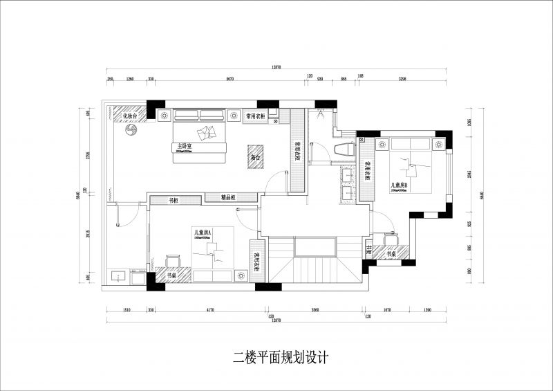
项目概述 项目位置:湖北宜昌 项目面积:室内175平米,庭院90平米 客户需求: 本项目的设计旨在满足一家四口(夫妻俩、一个儿子和一个女儿)的日常生活需求。考虑到孩子们还在小学阶段,空间设计将注重孩子活动及家庭作业的需求。同时,考虑到一楼的社交属性,业主酷爱烹饪,因此厨房设计将兼具实用性与美观性。此外,还需为老人的临时居住提供专属空间,确保家庭成员的多样性需求得到平衡与满足。 项目命名:伴庭艺墅 本项目旨在通过艺术手法打造别墅品质的居住空间,无论在庭院还是室内开放的区域,都营造出温馨、时尚、自然、充满生机的美好生活图景。 设计理念 本案以现代简约风格为基调,融合独特的艺术意象,运用极简的线条、克制的材质与流动的光影,打造出兼具美学与功能性的栖居空间。整体设计摒弃冗余的装饰,强调“Less is more”的设计哲学,力求重新构建空间的秩序感。 设计中将宜昌“山水之城”的轮廓抽象为空间中的斜切立面,营造出与自然相呼应的氛围。整体布局强调开放式设计,使活动区域与静谧角落相互融合,无论是家庭聚会、休闲时光,还是独处思考,居住者都能在此找到属于自己的宁静与舒适。